Ernst Architekten BDA

Seit 1930

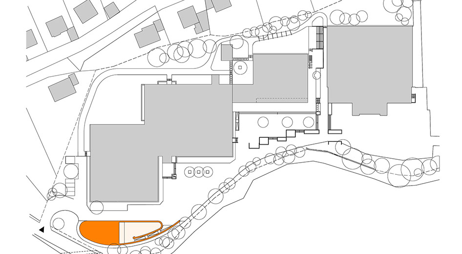
St. Angela Gymnasium - Kapellenneubau, Bad Münstereifel

 

Die Kapelle markiert den Zugangsbereich zum Schulgelände und definiert gemeinsam mit dem gegenüberliegend parallel verlaufenden, bestehenden Schulgebäude eine räumlich gefasste Erschließungsachse, die auf dem Schulhof mündet. Hier liegen sich der Haupteingang des Schulgebäudes und der Zugang zum Kapellenbezirk gegenüber. Die gekrümmte Ggebäudeflanke der Kapelle folgt dem Flusslauf der Erft, die das Schulgelände nach Osten begrenzt.

 

Der Kapellenbezirk ist eingefasst durch einen schleifenartig umfassenden Bruchsteinsockel aus heimischer Grauwacke. dieser trägt ein auf Stahlstützen ruhendes, nach Süden leicht ansteigendes stahlbalkenband, das den oberen räumlichen Abschluss bildet. das über eine Rampe zugängliche "Paradies" bildet den offenen eingangs- und vorbereitungsraum. der eigentliche kapellenraum ist durch eine in die primärkonstruktion einbeschriebene hölzerne wandschale definiert. kapellenraum und "Paradies" können durch öffnen aller Türelemente zu einem großen Versammlungsraum verbunden werden. Die Raumhöhe Verglasung zum "Paradies" sowie ein umlaufendes oberlichtband erzeugen eine ausgeglichene Tageslichtstimmung im Innenraum.