Ernst Architekten BDA

Seit 1930

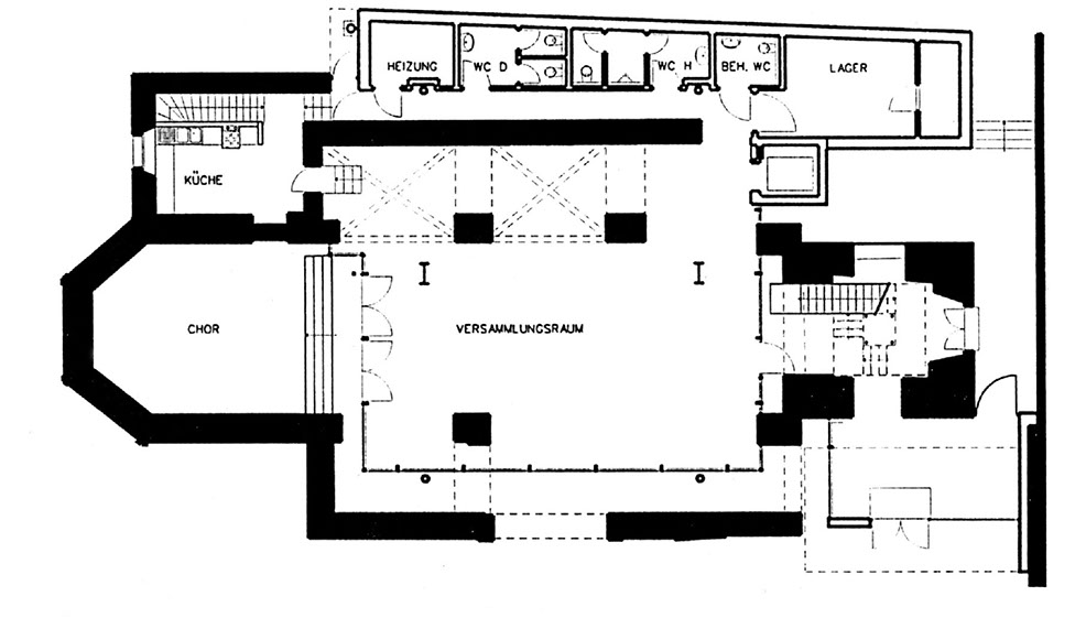
Martinskirche, Zülpich

 

Konversion einer Ruine zur kommunalen Begegnungsstätte.

Die im Ursprung romanische Pfeilerbasilika wurde nach mehreren Zerstörungen und wiederaufbauten im Jahre 1803 säkularisiert. Seither führten mehrere Nutzungsänderungen schrittweise zu Substanz- und Identitätsverlust. Die Architektur verlor ihre Massstäblichkeit und ihre charakteristischen Details.

 

Im Wettbewerbsverfahren lag der Schwerpunkt auf der Sicherung und Erhaltung der als Denkmalwert befundenen Bausubstanz und deren Einbeziehung in eine eigenständige Architektur. Das Hauptmerkmal der architektonischen Idee liegt in der „trennscharfen“ Einfügung eines neuen transparenten Baukörpers, die ruinenhafte Topographie des Baudenkmals kontrastierend. Die räumlich versetzte Überlagerung von Baudenkmal und Neubau erzeugt spannungsvolle Wechselbeziehungen zwischen Innen- und Außenräumen.

 

Der architektonische Entwurf wird aus Bildern, aus persönlichen Erfahrungen mit räumlichen Situationen zusammengefügt, eingebunden in eine prozesshafte Gestaltfindung mit dem Ziel einer identitätsstiftenden Einheit aus Konstruktion, Proportion und Material. Die Ausformulierung der Außenräume als Bestandteil des öffentlichen Raumes ist im Entwurfsprozess gleichwertig und untrennbar mit der Proportionierung und Organisation der Innenräume verbunden. Der Entwurf lebt von der Überzeugung, dass Baugeschichte nur dann lebendig erhalten und fortgeschrieben werden kann, wenn vergangenes in seiner Bedeutung für die Gegenwart ebenso respektiert wird wie gegenwärtiges in seiner Bedeutung für die Zukunft.